
Meer dan 10 jaar tevreden shoppers!
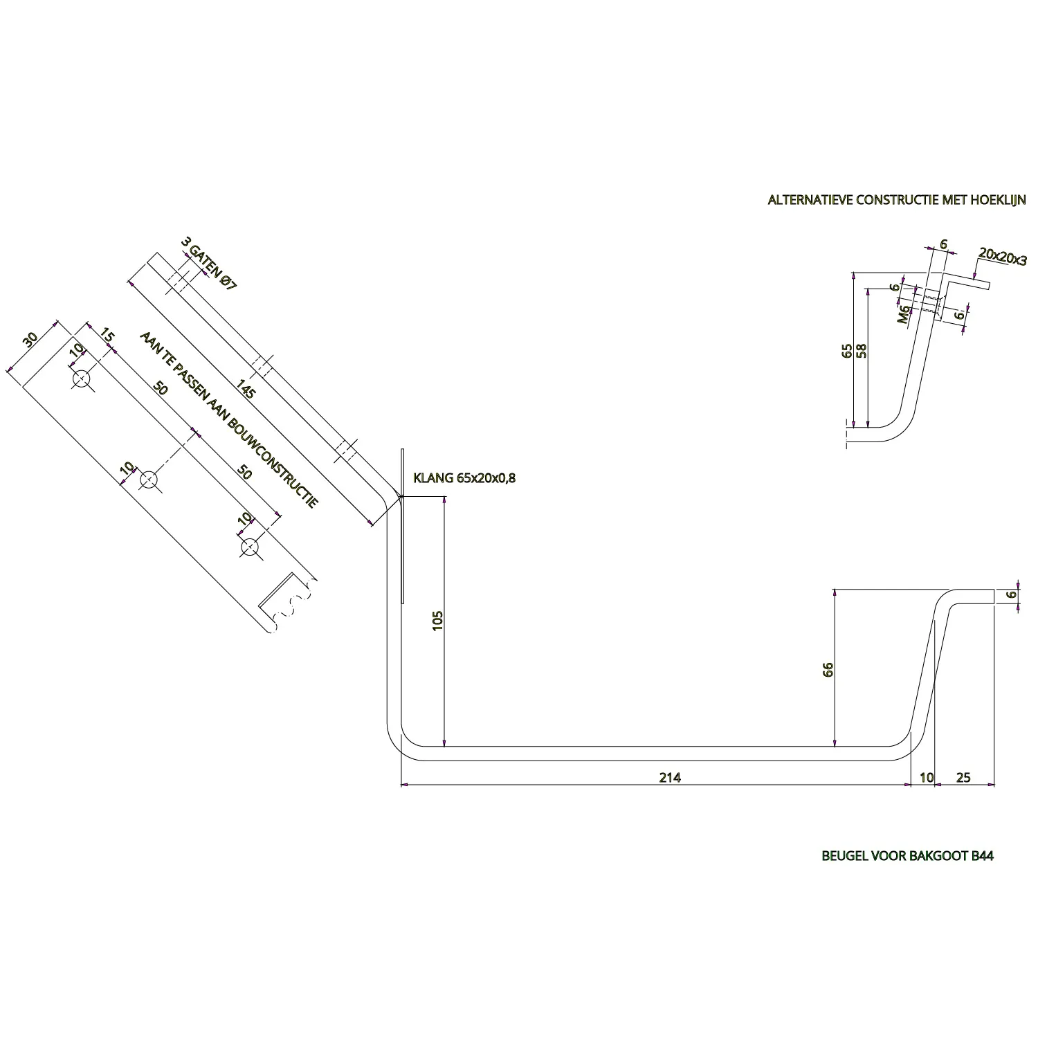
45 graden beugel B44 - tapgat t.b.v. hoeklijn
Toon alle:
Bakgoot B44 + toebehoren
Kies zelf je leverdatum bij het afrekenen!
Ook op zaterdag bezorgd!
Winterdeal. Gratis verzenden vanaf €125,-
Deskundig advies!
Betaal achteraf, geen aanbetaling!
Meer dan 10 jaar tevreden shoppers!
Beschrijving
Deze dakgootbeugel is geschikt voor daken met een hellingshoek rond de 45 graden. De hoek van 45 graden wordt gemeten vanaf de achterkant van de beugel.
Belangrijkste Kenmerken:
- Geschikt voor: Montage op dakbeschot van schuine daken
- Hoek: 45 graden (gemeten vanaf achterkant beugel)
- Exact Materiaal: Gegalvaniseerd staal
- Afwerking: Thermisch gegalvaniseerd
- Types: Verkrijgbaar als lip/klang beugel of tapgat beugel
- Breedte beugel: 30mm
- Materiaaldikte: 5mm
Type Beugels:
- Lip/Klang Beugel: De lip aan de voorzijde past/haakt in de kraal van de goot en klang van de beugel wordt over de achteropstand van de goot gebogen om de goot vast te zetten. De klang is ca. 80mm lang en 20mm breed
- Tapgat Beugel: Voorzien van M6x8mm schroefdraad om een hoeklijn te monteren. De hoeklijn houdt de kraal van de goot stevig op zijn plek. Deze is los te bestellen via link >
Montagerichtlijnen:
- Afstand: Plaats beugels om de 60 cm (of korter bij zware belasting)
- Afschot: Aanbevolen afschot is 2-3 mm per meter voor goede waterafvoer
- Uitlijning: Span een touwtje tussen de buitenste beugels om een rechte lijn te creëren
- Aanpassing: Beugel kan licht worden bijgebogen voor rechte positionering van de goot (ongeveer 3-5 graden bijbuigen)
Technische Details:
- Hoek van de Beugel: De hoek is 45 graden, met een tolerantie van 3 graden. (maximaal 3 graden naar boven of naar beneden)
- Goottypes: Geschikt voor bakgoot rechthoekigmodel
- Gootmaten: Geschikt voor gootmaat B44
- Levensduur: De verwachte levensduur onder normale omstandigheden 40+ jaar
- Afmetingen: Zie technische tekening link >
Belangrijke Informatie:
- Afwatering: Standaard staat de kraal van de goot lager dan de achteropstand. Bij overlopen stroomt het water aan de voorkant over.
- Buiging: Om de goot recht te plaatsen, zonder de natuurlijke voorwaartse helling van de kraal, kan de beugel licht worden bijgebogen (3-5 graden)
Bestel nu je dakgootbeugels voor een betrouwbare bevestiging van je dakgoot. Neem bij vragen contact met ons op.






